PROPERTY
物件情報
【新築分譲住宅】ララフィール誉田町3期
- 場所
- 千葉市緑区誉田町
- 交通
- JR外房線「誉田」駅…バス7分・バス停「中宿」停歩6分
JR外房線「鎌取」駅…バス11分・バス停「誉田給水場」停歩4分
- 土地面積
- 103.46㎡
- 価格
- 3,380万円
いよいよ完成間近!現地案内会開催中!

散らからない家は、
家族の時間を増やしてくれる。
片づけに追われる毎日から、
家族と向き合う時間が増える暮らしへ。

こんな毎日、思い当たりませんか?
・気づくと部屋が散らかっている
・片づけに時間を取られ、子どもと向き合う余裕がない
・家事や洗濯に追われ、一日があっという間に終わる
その忙しさ、家のつくりで変えられます。

家族の時間が増える理由1
片づけやすい収納計画

・散らかりにくく片づけやすい収納計画で、家事の負担を軽減
・生活動線上に収納を配置し、家族みんなが自然と片づけられる
・リビングはファミリークローク付きで、おもちゃや日用品もすぐ収納
家族の時間が増える理由2
家事が早く終わる動線

・水回りを直線にまとめた家事ラク動線
・2階ランドリーホールで、干す・たたむ・しまうが一か所で完結
・家事時間を短縮し、家族と過ごす時間を生み出します
家族の時間が増える理由3
収納量が心の余裕に

・2つのウォークインクローゼットで衣類も思い出の品もすっきり
・物があふれないことで、気持ちにもゆとりが生まれます
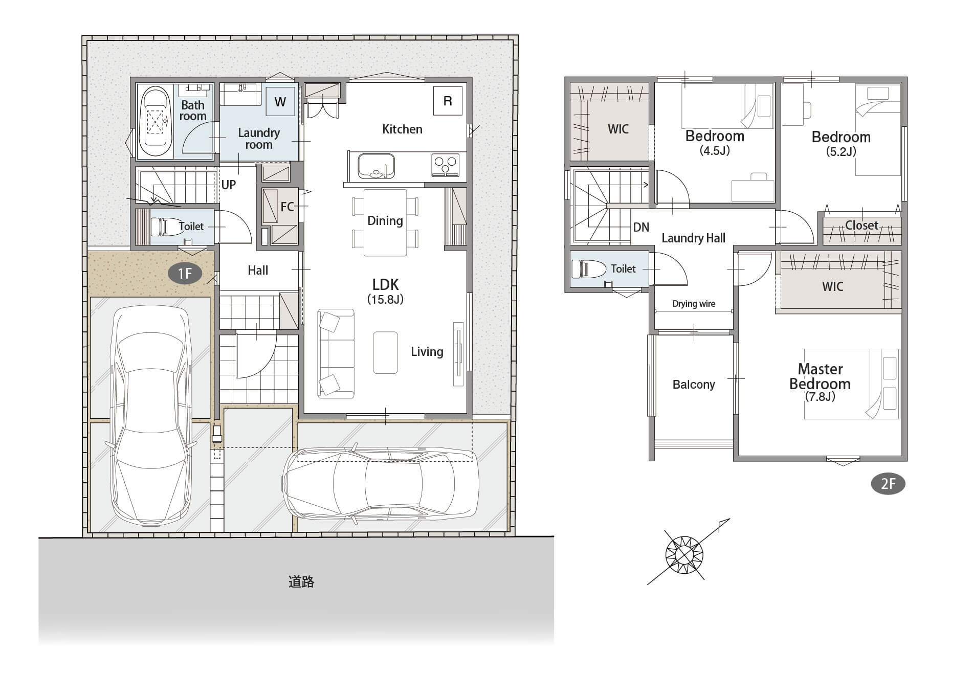
間取りの特徴
・3LDKで家族それぞれの居場所を確保
・スタディベースは学習や在宅ワークに活躍
・収納と動線を重視した、子育て目線の間取り
月々の支払いと暮らしの変化
・月々9万円前後の賃貸と比べ、暮らしの質が向上
・片づけや家事に追われない分、家族時間が増える住まい

立地・周辺環境
・おゆみ野エリア隣接で、買い物や休日のお出かけも便利
・子育て世代に嬉しい生活環境

気になる方はお気軽にお問い合わせください。
モデルハウス公開中!
収納と動線で、家族の時間はここまで変わります。
ぜひ現地で体感してください。
間取り図

\散らかりづらく片づけやすい!/
共働き・子育て世帯の家事をラクにする工夫が満載です
共働き・子育て世帯の家事をラクにする工夫が満載です
物件概要
-
- 物件名
- 【新築分譲住宅】ララフィール誉田町3期
- 価格
- 3,380万円
- 土地面積
- 103.46㎡
- 所在地
- 千葉市緑区誉田町
- 延床面積
- 92.61m2
- 交通
- JR外房線「誉田」駅…バス7分・バス停「中宿」停歩6分
JR外房線「鎌取」駅…バス11分・バス停「誉田給水場」停歩4分
- 建物構造
- 木造2階建
- 建ぺい率
- 50%
- 間取
- 3LDK+2WIC+ランドリーホール+スタディベース
- 容積率
- 100%
- 現況
- 建築中
- 権利
- 所有権
- 完成予定年月
- 2026年4月予定
- 地目
- 宅地
- 都市計画
- 市街化区域
- 用途地域
- 第一種低層住居専用地域
- 設備
- 公営水道・都市ガス・本下水
- 建築確認番号
- 千葉住第252262号
- 取引形態
- 売主



ご相談受付
店舗来場予約